“My Front Yard” is a retail community that redefines traditional experiences by prioritizing open-air circulation, communal “neighborhood” planning, and a bold, unifying architectural language. Situated in front of a hillside in Phuket, the design avoids the monolithic “big box” retail approach, instead opting for a cluster of decentralized, low-rise pavilions that invite curiosity and exploration.

A New Neighborhood Masterplan
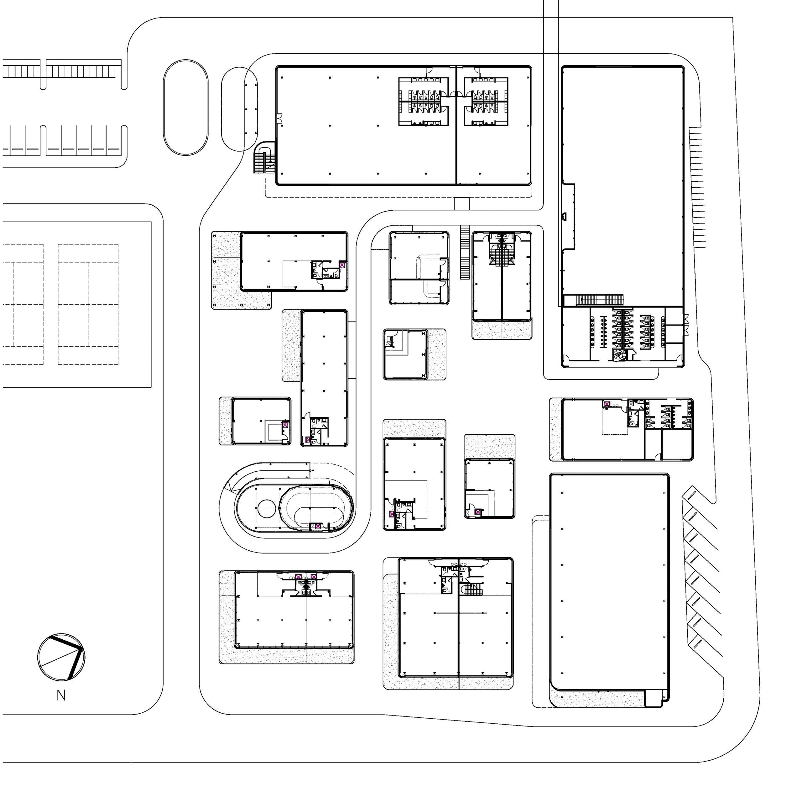
The site layout of My Front Yard utilizes a non-linear arrangement of buildings. By breaking the program size into smaller blocks, Architectkidd created a series of internal courtyards and landscaped pockets.

Meandering ground-level paths along with an elevated bridge encourage users to adopt a leisurely, pedestrian and pet-friendly environment. Voids and laneways between buildings and the inclusion of green “islands” also facilitate natural ventilation, a necessity for tropical climates.

Elevated “Yellow Ribbon”
One striking element of the design for My Front Yard is the continuous yellow walkway system. An elevated bridge serves as the project’s artery, weaving between white buildings to connect various retail zones and circulation.

The vibrant yellow bridge creates a high-contrast dialogue with the neutral white structures and the surrounding green landscape. The bridge also provides a second level of engagement, allowing visitors to experience the community “neighborhood” from multiple perspectives while offering shaded walkways and laneways below.

Minimalist Retail Pavilions
The retail units are designed as clean, white volumes with rounded corners and shaded storefronts. This softened geometry creates a sense of movement and prevents the architecture from feeling imposing.

Expansive white walls function as a clean backdrop for bold graphic signage, allowing individual brand identities to be expressed without cluttering the site. The use of textured white render, along with glass and metal siding provides a modern, tactile quality that feels approachable.

Architectkidd’s design for My Front Yard in Phuket aims to create effective social and communal spaces by focusing on transitions between public and private areas. By treating the entire site as a “front yard”, the architecture serves as a framework for social interaction, where every day journeys – the walk across the bridge, the view of the mountains, and the discovery of a new café or eatery – is as important as the destination itself.

Project: My Front Yard
Location: Phuket, Thailand
Program: Commercial & Retail Community
Building area: 5,000 square meters
Architect: Architectkidd
My Front Yard design by Architectkidd has been featured in Archdaily , product design platform Yanko Design and The Design Story. You can view more images of My Front Yard Phuket below:


















